Growing a small private home designed around components and sweat equity
The couple living in this home had many great ideas on how they wanted to evolve. With a finite budget, a collection of salvaged materials, and a willingness to apply much of their own labor, we set out on a journey to determine a solution that met their needs. Their desires included:
- Garage space for working on and parking vehicles
- Larger living / lounge / entertaining space
- Creation of a master suite, either via renovation or addition
We discussed everything from a detached garage/loft concept to various addition possibilities before settling on a direction:

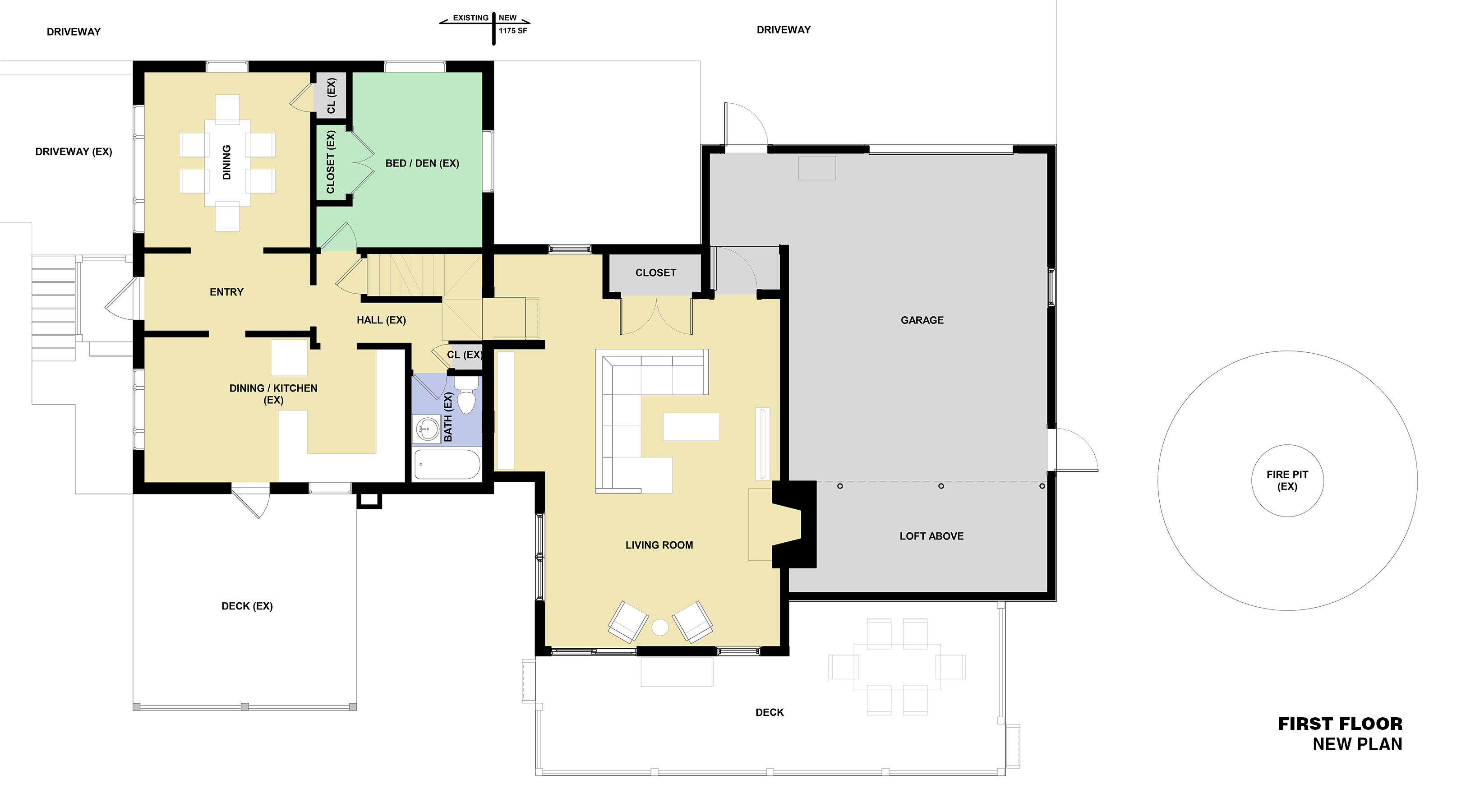
SOLUTION = Add on living/sleeping space with attached garage and limited renovation to existing home
To remain within the budget, we elected for a single car garage that was wider and taller than normal to allow room to move and lift a vehicle versus a multi-vehicle garage. We worked to make the design straightforward to allow simple construction and easy applicability of the couple’s handy-work skills. We also incorporated salvaged materials, including some pre-built insulated wall panels and oil furnace.
The site added another layer of complexity. Although the site is straightforward, we had to fit the addition between an existing water well, septic tank and leech field, and stone firepit previously built by the couple. We also had to determine how to get a driveway to the back of the house, which was limited due to terrain and utilities constraints.
The final direction included:
Second Floor
- 1 existing bedroom
- 1 existing bedroom converting to master den
- 1 new master suite (bedroom, closet, full bath)
First Floor
- 1 existing dining / kitchen
- 1 existing bedroom / den
- 1 existing full bathroom
- 1 existing living room converting to entry and dining room
- 1 new living room
- 1 new garage with small storage loft
- new outdoor deck
Basement
- existing basement to remain
- 1 new crawlspace
PROJECT DATA / INFORMATION
Square Footage
- 1,965 Existing SF
- 1,765 New SF
- 3,730 Total Gross SF
Project Budget
- $50,000
- combination of contractor and self perform work
Current Status
- Pricing
- On Hold












