Expanding a 125 year old home to last another generation.
The needs of a growing family of 8 prompted the exploration of expanding this beautiful 3-bedroom home. Moving to a new home was an option, but the family desired to stay with their established roots. To determine the feasibility of staying in place, we explored iterations of the following priorities:
- Additional Sleeping Space for their growing family and guests
- Separation of living and sleeping spaces if possible
- Maintaining the Victorian-esque charm of the existing home

SOLUTION = Add on and Renovate Our Existing Home
After determining that staying in place was the right choice, we dove into the design process. Focused on the big-picture priorities, we also pursued the following ideas:
- Aging in place (as we get older, can we live on a single level?)
- Sell-ability (we want the home to be uniquely ours yet sellable in the future)
- Future “Garden Apartment” (basement can be adapted into a small apartment-like space)
- Purposeful / Functional (no wasted space, design elements have a purpose)
- Flexible (can the space adapt to our needs?)
- Flow (the family can move around the home well)
Many iterations and ideas brought us to the following final direction:
Second Floor
- 2 existing bedrooms
- 1 existing full bathroom
- 1 new full bathroom
- 3 new bedrooms
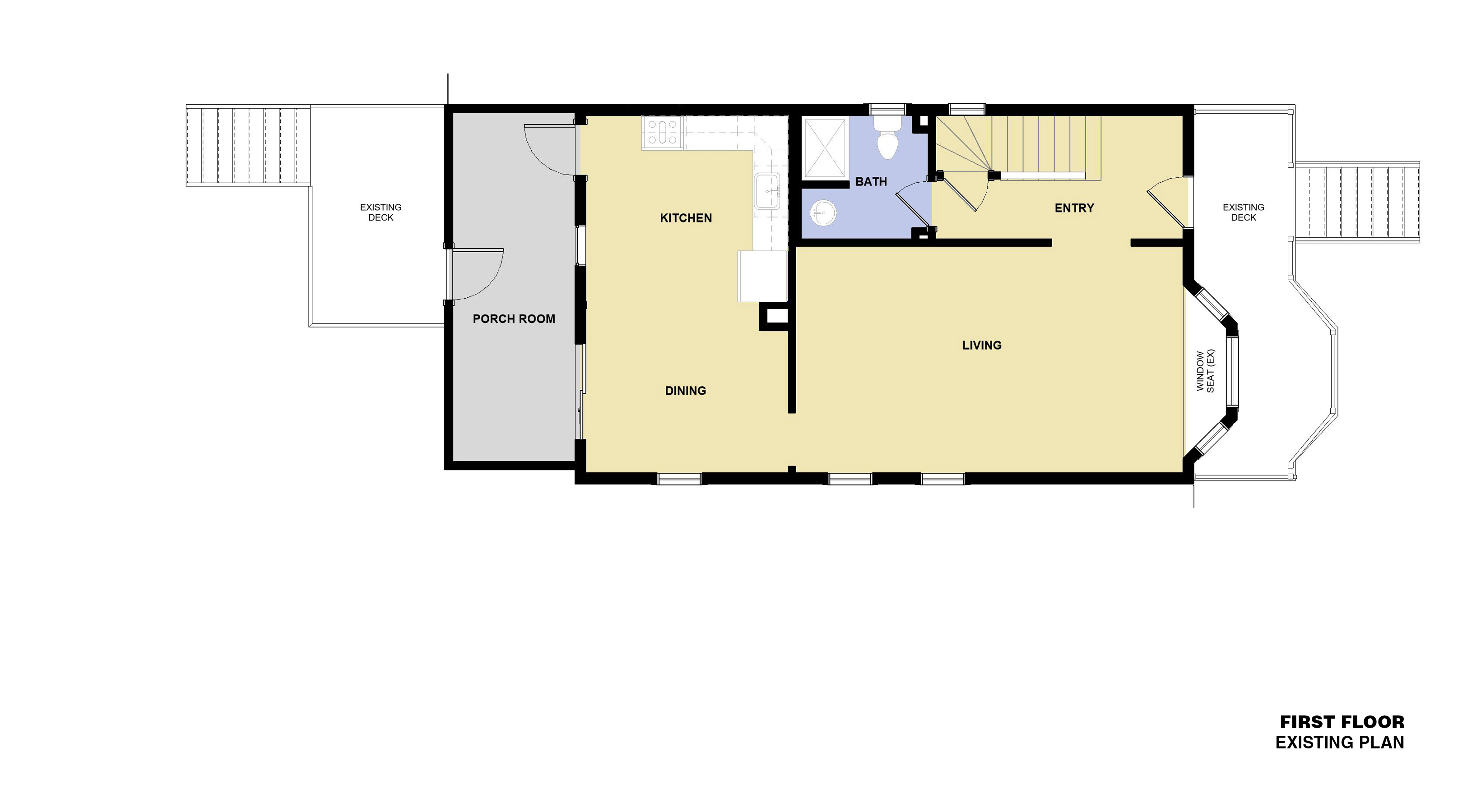
First Floor
- 1 existing entry
- 1 existing full bathroom
- 1 existing living room (renovated)
- 1 existing dining room (renovated)
- 1 existing kitchen (renovated)
- 1 new master suite (bedroom, closet, full bath)
- 1 new laundry room
- 1 new mudroom
- expansion of outdoor deck
Basement
- existing basement to remain unfinished
- 1 new full basement to include living space and possible bedroom, full bathroom, and closet
PROJECT DATA / INFORMATION
Square Footage
- 2,480 Existing SF
- 2,590 New SF
- 5,070 Total Gross SF
Project Cost
- $750,000 (estimated)
Current Status
- Permit Documentation
- On Hold
PROJECT PARTNERS
- Architect of Record – CMMR, LLC (Joseph Carroll)











